Detached Villa Project - Moraira
Moraira

Detached Villa Project - Moraira

€ 2.175.000

5 bedrooms 5 bathrooms 395m² / 814m² plot
1 / 9
Scroll for more
Moraira

Detached Villa Project - Moraira

5 bedrooms
5 bathrooms
395m² built
814m² plot

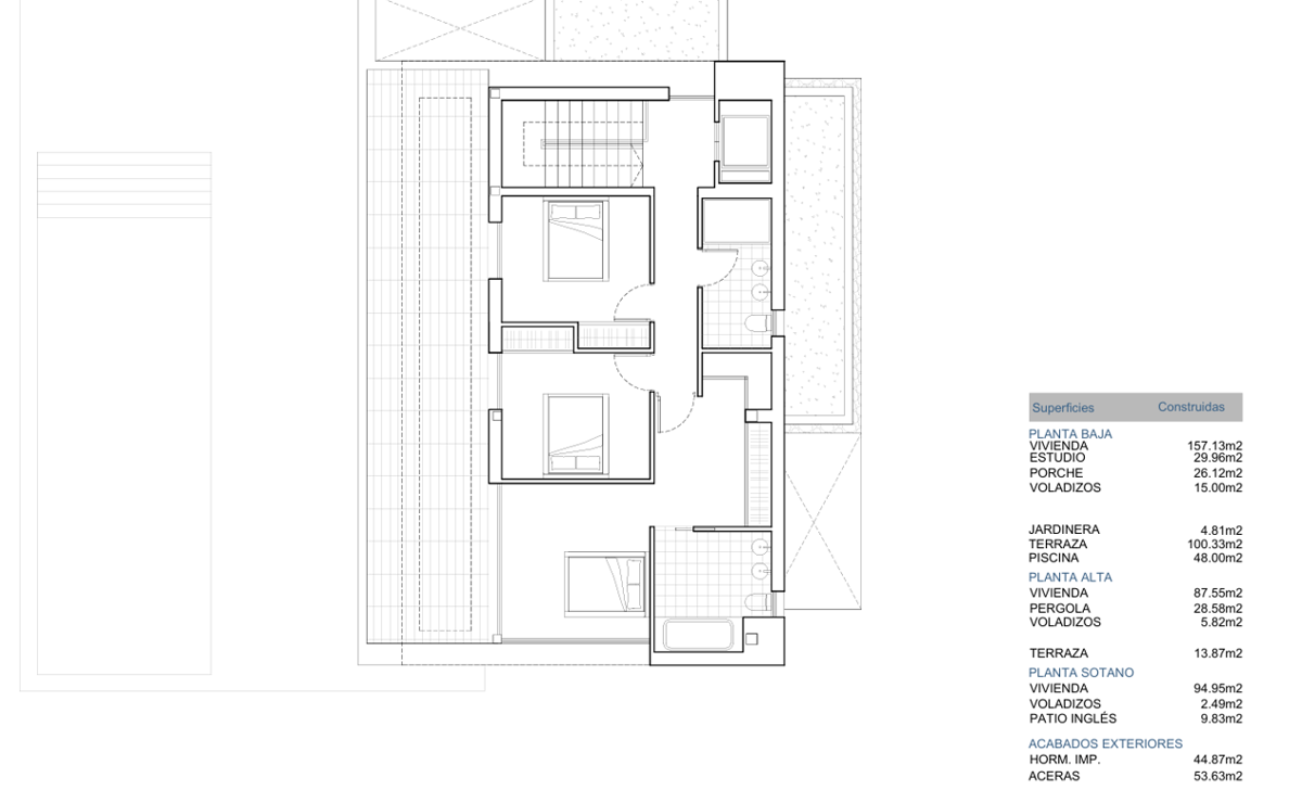
This charming project in Benifairó consists of a twostorey house with a modern and functional design. With a total built area of 395.71 m², the space has been carefully distributed to maximize comfort and the use of natural light.

The ground floor is intended for the common areas, with large living areas, dining room, kitchen and a bedroom, while the upper floor will house the bedrooms, offering privacy and privileged views. This property stands out for its harmonious design, ideal for enjoying a comfortable and contemporary lifestyle in a quiet environment. A perfect home to live and enjoy!

Energy
Certification
Scale
Consumption
kWh/m²year
Emissions kg
CO₂/m²year
A
< 30
< 7
B
30-50
7-12
C
50-90
12-20
D
90-140
20-30
E
140-200
30-42
F
200-265
42-56
G
> 265
> 56
In Process

Based on Real Decreto 390/2021 (BOE-A-2021-9176)

Location

Location - Detached Villa Project - Moraira
Open in Google Maps
Approximate location
Asking price € 2.175.000
Reference RH20513
Type Villa
Built area 395m²
Plot 814m²

Features

BBQ Area
community_pool
Garden
Parking
Storage Room
Air Conditioning

Share