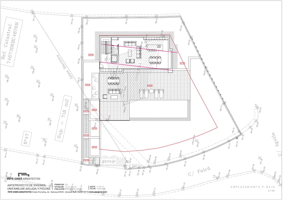
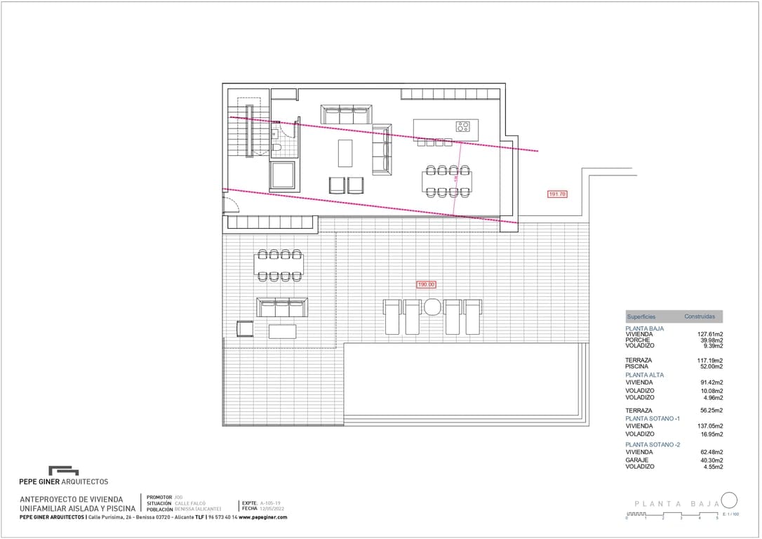
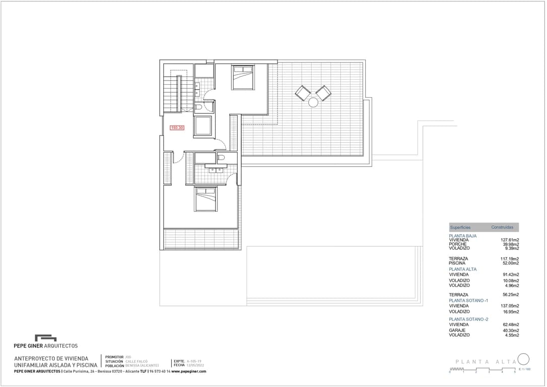
This villa, with paneled exposed concrete finishes , has 4 floors that are connected with an elevator and an internal staircase. The ground floor has a spacious living roomdining roomopen kitchen and a toilet. The kitchen is fully equipped and has an island for cooking. Sliding doors at ceiling height give direct access to a large terrace and pool. The upper floor contains two bedrooms with ensuite bathrooms and a terrace.
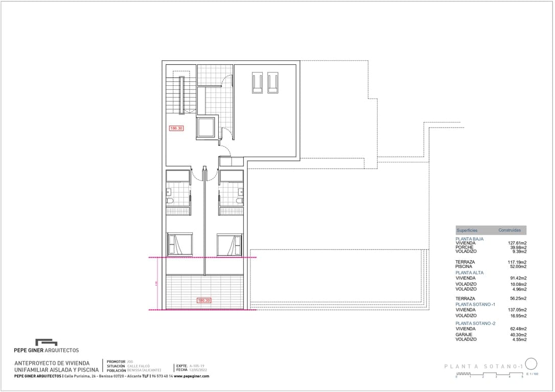
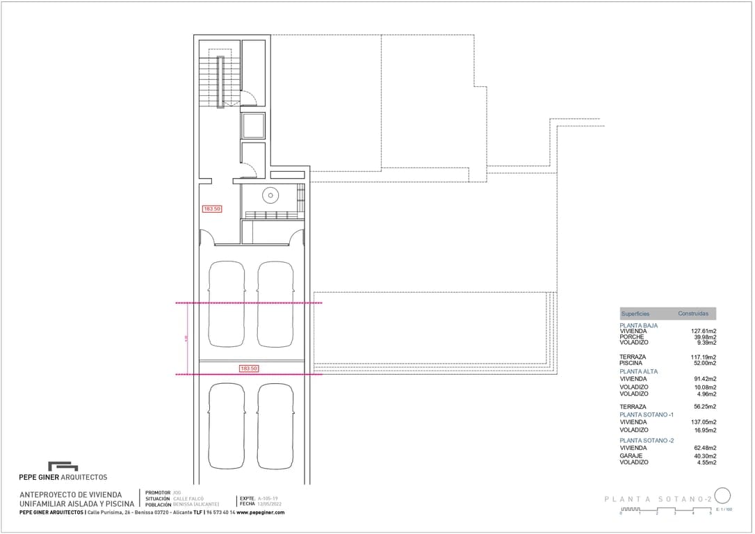
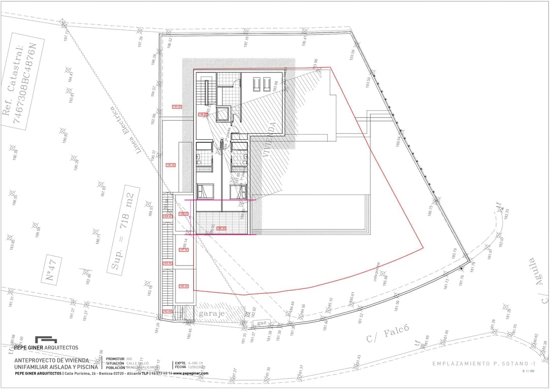
The property has 2 basements. Basement number 1 has two other bedrooms, each with its own bathroom and a laundry room. Basement number 2 houses the gym, the wine cellar and a garage with capacity for 4 cars.
The house has air conditioning (with ducts) and central heating with heat pump. It has automatic entrance door with independent pedestrian entrance and intercom. On the same level as the main house is the swimming pool.
It includes exterior carpentry with automatic blinds and mosquito nets in bedrooms, fitted wardrobes with modules and installation of basic alarm .