Project for single-storey villa for sale in Calpe
For Sale Calpe

Project for single-storey villa for sale in Calpe

€ 1.525.000

3 bedrooms 4 bathrooms 249m² / 800m² plot
1 / 10
Scroll for more
Calpe

Project for single-storey villa for sale in Calpe

3 bedrooms
4 bathrooms
249m² built
800m² plot

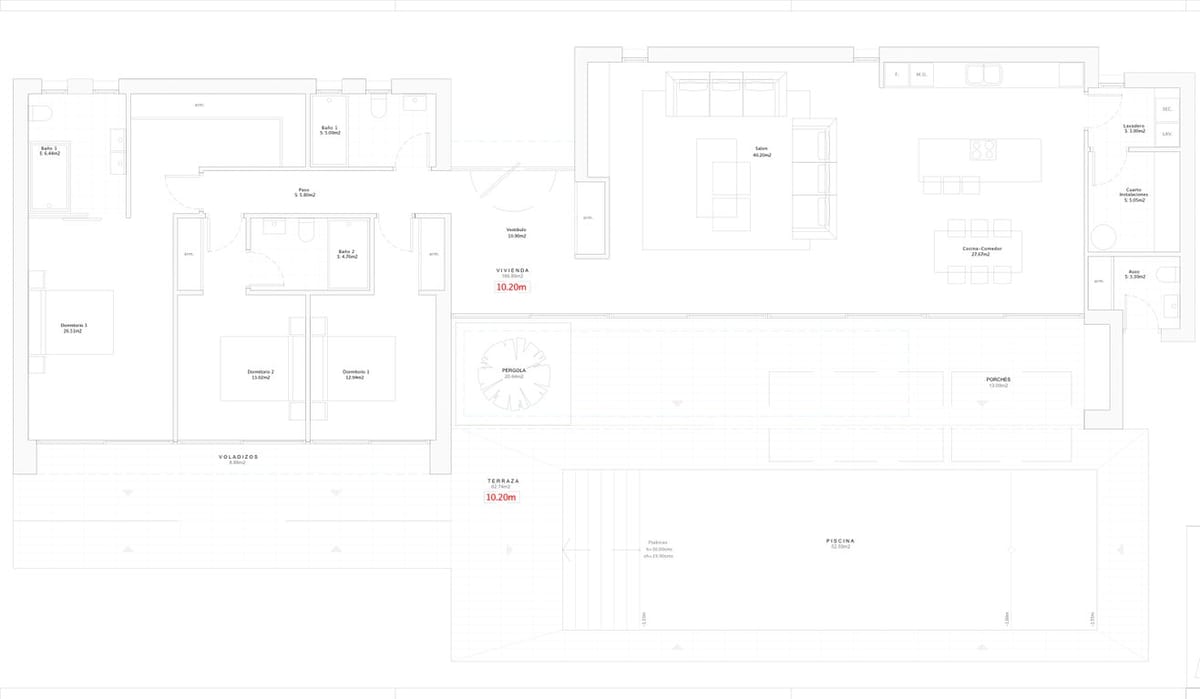
PROJECT: Modern singlestorey villa for sale in Pla Roig, Calpe

This luxurious, singlestorey villa is the perfect combination of comfort, style and quality. Located in Pla Roig in Calpe; quiet, yet close to various amenities, the beach, restaurants and cosy terraces.

Upon entering, you arrive in a spacious hall that provides access to different parts of the house. On the left is the spacious living room with adjoining open dining room and kitchen. The kitchen is a real eyecatcher with a cooking island and is fully equipped with highquality Bosch appliances or equivalent brands. There is also a separate utility room with laundry facilities and extra storage space.

On the right side of the hall is the sleeping area. The master suite has a walkin closet and ensuite bathroom. There is also a second bedroom with ensuite bathroom and a third bedroom with access to a bathroom in the hallway. Sliding glass doors provide direct access to the terrace and garden. This glass façade allows for plenty of natural light and a smooth transition between indoors and outdoors.

The villa is equipped with underfloor heating (heat pump), air conditioning and an advanced home automation system. Thanks to the automatic shutters, Airzone thermostats in every room and an alarm system, you always have complete control over your home. The house also has a barbecue, a fully equipped outdoor bathroom and parking for two cars.

The garden has been designed with simplicity and ease of maintenance in mind and offers optimal privacy thanks to the strategically placed cypress trees. The beautiful 52 m² swimming pool is a perfect place to relax, and an outdoor shower provides extra comfort. The terrace offers plenty of space to create cosy seating areas where you can enjoy the wonderful Mediterranean climate all year round.

Are you interested in this beautiful villa Please contact one of our staff members for more information or to arrange a viewing. We are happy to help!

The displayed price does not include taxes and purchase costs / The offer is subject to errors, price changes, availability, omission and / or withdrawal from the market without prior notice / Furniture and contents according to personalized agreement and not according to the photos in the presentation
Energy
Certification
Scale
Consumption
kWh/m²year
Emissions kg
CO₂/m²year
A
< 30
< 7
B
30-50
7-12
C
50-90
12-20
D
90-140
20-30
E
140-200
30-42
F
200-265
42-56
G
> 265
> 56
In Process

Based on Real Decreto 390/2021 (BOE-A-2021-9176)

Location

Location - Project for single-storey villa for sale in Calpe
Open in Google Maps
Approximate location
Asking price € 1.525.000
Reference RH20626
Type Villa
Built area 249m²
Plot 800m²

Features

BBQ Area
community_pool
Parking
Air Conditioning

Share